Sendeiro 3 - Icaria
Venta o Alquiler 308m² 320.000€
Nave en Icaria
Rúa Sendeiro 3, 15173 Oleiros - La Coruña
DESCRIPCIÓN
Se alquila o vende, nave comercial en la entrada del prestigioso polígono de Icaria, en Oleiros, A Coruña.
Ideal para empresas del sector TIC, marketing, comunicación, distribución, formación…
El polígono de Icaria se encuentra en la zona residencial con mayor crecimiento del área coruñesa. Está situado junto a la nacional VI y cuenta con paradas de autobuses. Se va caminando a diferentes restaurantes y supermercados. Está a 10 minutos del centro de A Coruña y a 2 km de la entrada de la autopista AP9.
Tiene 308 m2 en perfecto estado de uso, con muy buena conectividad, y bien distribuidos.
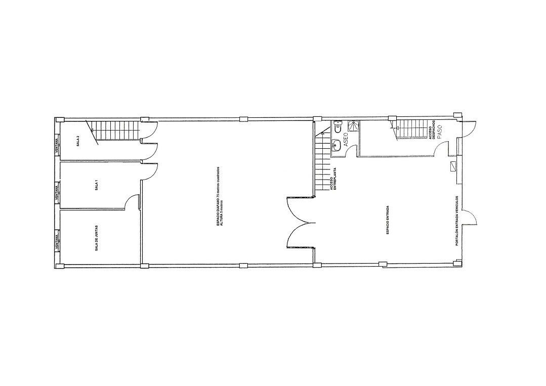
La PLANTA BAJA de la nave tiene 242 m2, a la que se accede por un portalón para acceso de vehículos, que se abre a una ZONA DE ENTRADA de 48,05 m2, con cuarto de baño.
Desde la ZONA DE ENTRADA a través de otro portalón metálico grande de 2 hojas, que se abre un espacio diáfano de 80 m2, con 4,60 metros de altura. Tras él, en la misma planta baja, se encuentran 3 OFICINAS o talleres, con puertas y ventanas exteriores a plaza.
Sobre ellos hay otra PLANTA con 3 OFICINAS NAVE también con ventanas a plaza.
Además, desde la ZONA DE ENTRADA, parte una escalera que da a otra ENTRE PLANTA con 2 ALMACENES más.
Desde la fachada principal, a través de un acceso individual, se accede a la ZONA DE DESPACHOS Y OFICINA. Es un espacio de 65 m2 con una oficina amplia para 3 puestos, 2 despachos separados y un aseo, todos exteriores y luminosos.
La nave cuenta con un aparcamiento exterior propio, semi cerrado, para 4 coches.
Antigüedad 24 años..
- Climatización instalada
- Alarma
- Aparcamiento privado
- Vistas despejadas
- Cubierta asilada térmica y acústicamente
320.000 €
Venta ó Alquiler
325.000€
Sendeiro 3
Buen estado
-- habitaciones
308 m²
1999


































































































