Rúa Caño 21 - Bergondo
3 Habitaciones Rehabilitación
REHABILITACION CON ESTILO
DESCRIPCIÓN
Espacios pensados para el máximo disfrute de su interior y exterior, además de una constante interrelación entre ambos.
La vivienda se sitúa en el municipio de Bergondo, cerca de Betanzos, Sada y Oleiros. Con muy buena conexión con A Coruña o el aeropuerto mediante la AP9
Cuenta con una gran riqueza natural en sus alrededores, la zona de Las Marismas, LIC Betanzos-Mandeo (espacio natural protegido) y multitud de playas cercanas, o el Puerto Deportivo de Sada.
La vivienda original mantiene su estructura y aperturas. En el alzado principal priorizamos la privacidad hacia la calle, creando muros opacos y pequeñas ventanas. El metal, la piedra y la madera son los materiales principales en el diseño.
En el alzado posterior la vivienda se abre y se vuelca al jardín, aprovechando al máximo la luz natural y permitiendo el disfrute total de las zonas exteriores. La vivienda cuenta con zona de BBQ, gimnasio semi exterior, y piscina.
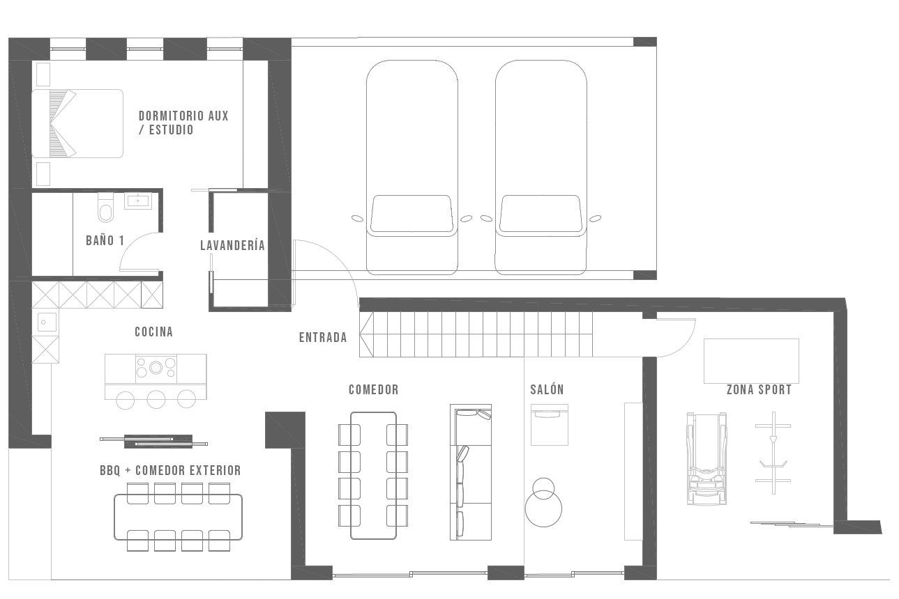
La planta inferior es de manera longitudinal uniendo las zonas comunes. El salón/comedor se encuentra en la zona de nueva construcción, y cocina, baño, lavandería y habitación auxiliar o estudio en la planta de vivienda antigua.
Al entrar encontramos de frente el comedor que nos presenta la vivienda y en el mismo espacio el salón. Este último cuenta con chimenea y un techo vidriado que le aporta mayor luminosidad y un juego arquitectónico muy interesante.
Esta zona vidriada del salón corresponde con una estructura metálica que une una de las habitaciones principales con la fachada y la amplía en espacio y luminosidad mediante dos puertas correderas que nos permiten abrir o cerrar la zona.
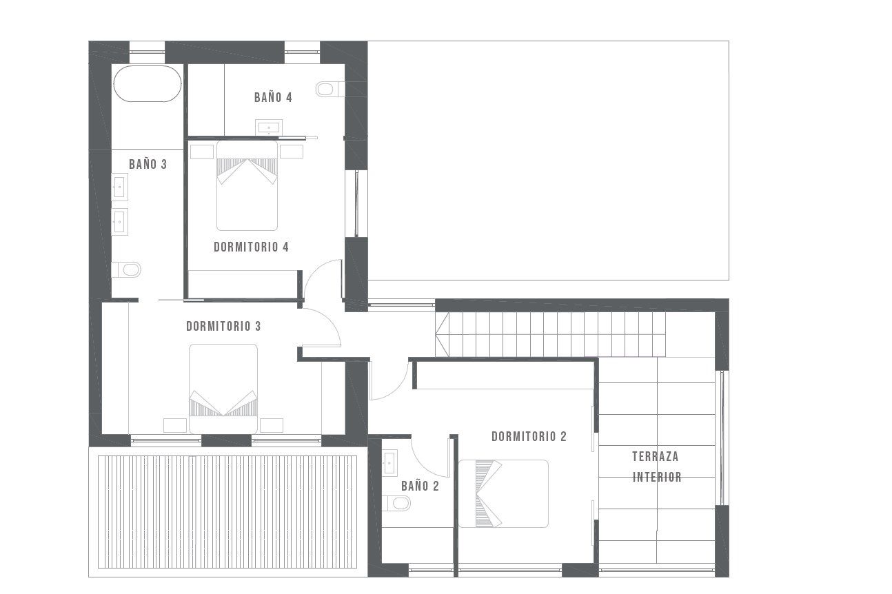
La vivienda cuenta con tres habitaciones en planta primera, todas ellas con baño propio y armario empotrados.
La zona de escaleras tiene la parte superior vidriada dejando entrar luz natural a esta parte.
La obra comenzará a principios de enero de 2021 y se entregará en diciembre. Precio de venta: 475.000€























































































