San Andrés 115

2 plantas   768 m²    Excelente oportunidad

EL MEJOR LOCAL EN LA MEJOR UBICACIÓN

San Andrés 115, 15003 La Coruña

DESCRIPCIÓN

SE VENDE ESPECTACULAR BAJO COMERCIAL DE 768 M2 EN EL CENTRO DE LA CORUÑA.

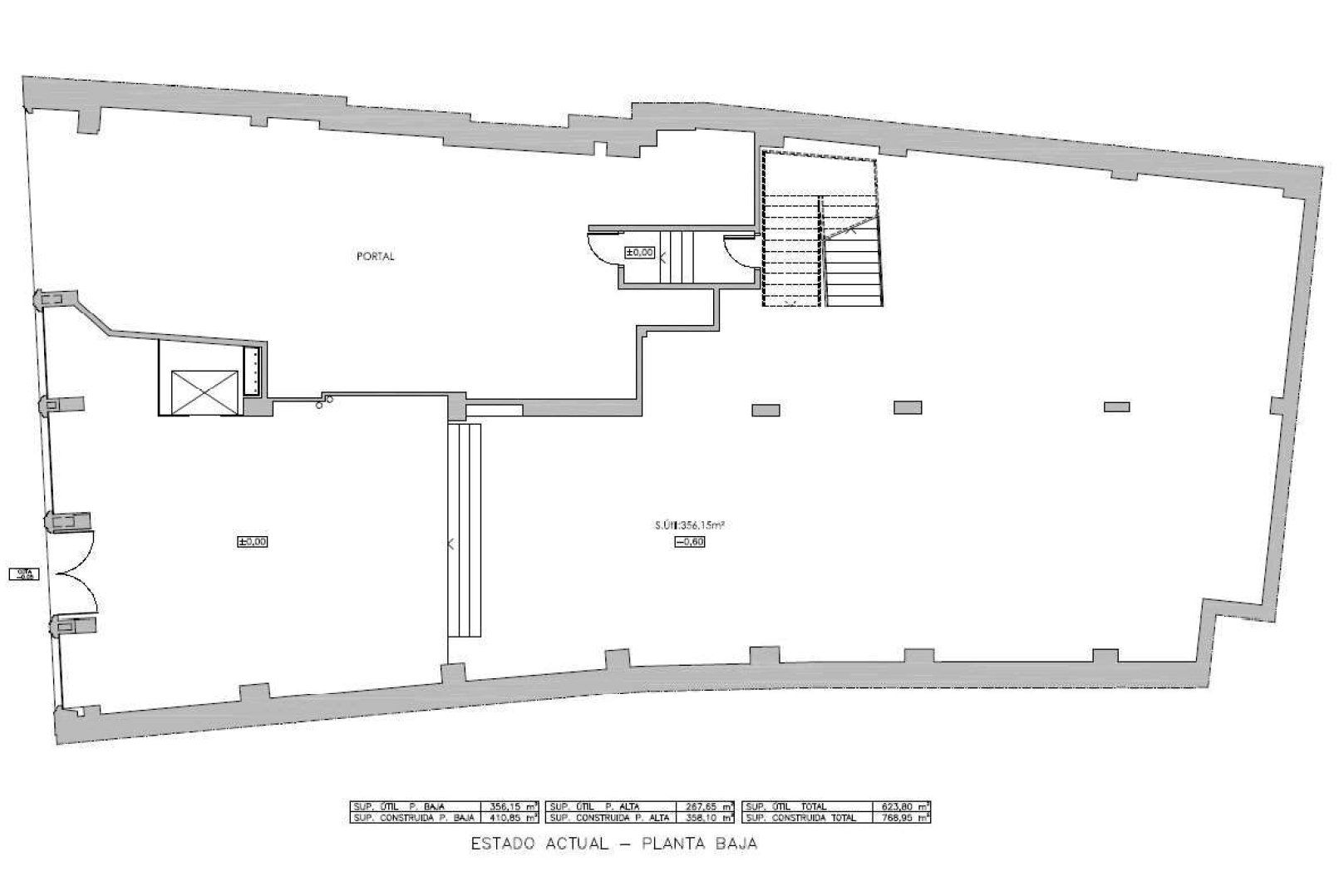
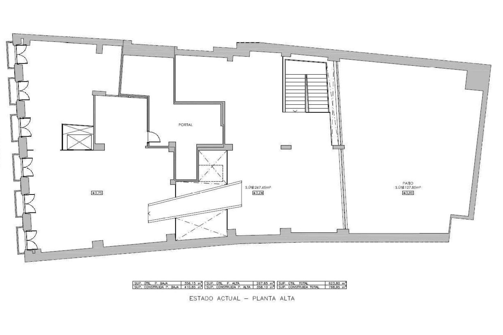
Local Comercial en calle San Andrés, semi-esquina con calle Santa Catalina, de 768 m2 construidos de superficie a los que se añaden 115 m2 de terraza exterior de uso exclusivo.

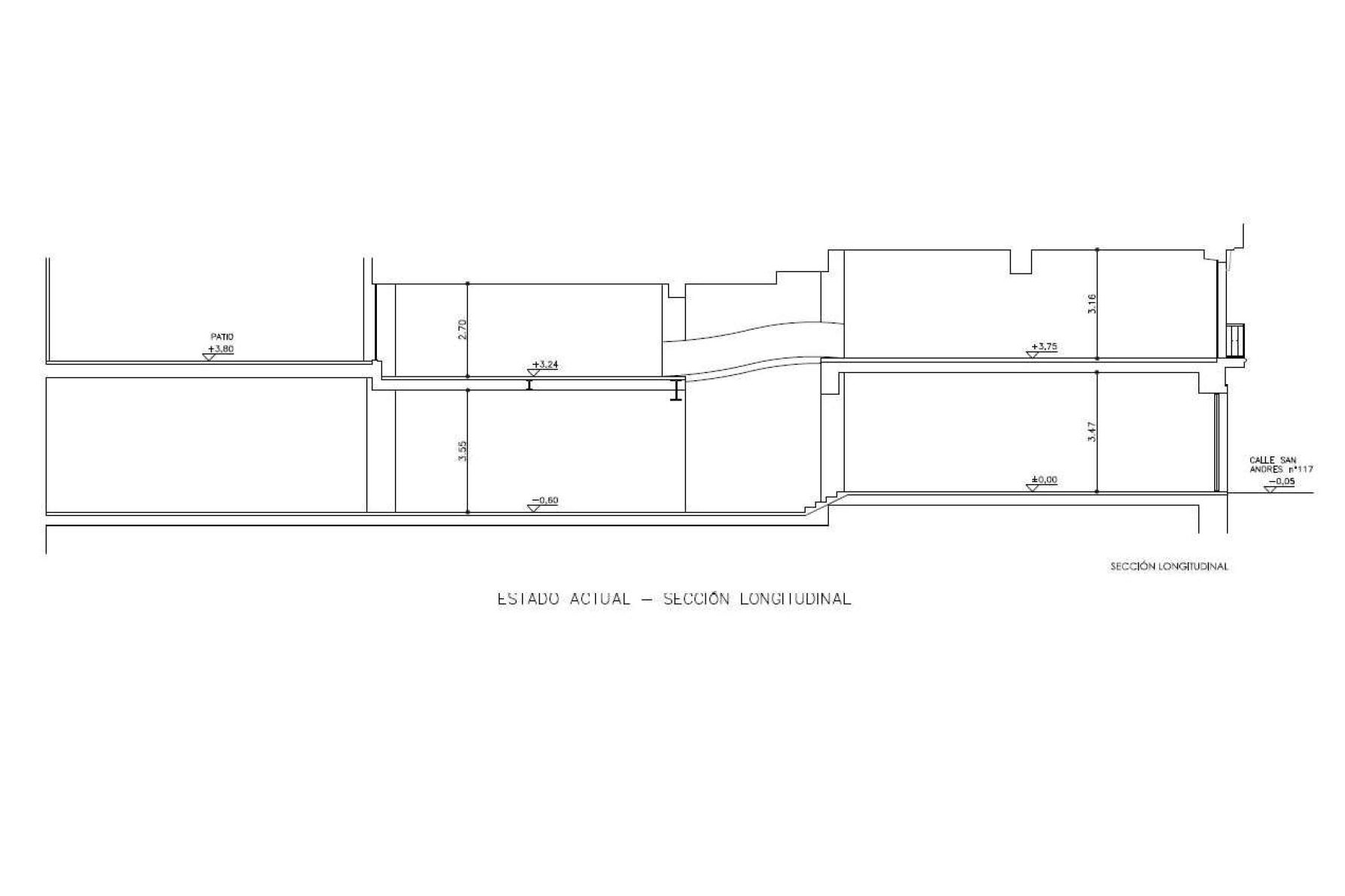
El inmueble ocupa la totalidad de las plantas bajas y entreplanta de un edificio catalogado con fachada de piedra y galerías, totalmente rehabilitado en 2006 y en excelente estado de conservación y mantenimiento. Su imponente fachada, con grandes superficies acristaladas enmarcadas en piedra, tiene 19 m de largo y más de 6 metros de alto fachada a calle San Andrés, proporcionando gran luminosidad a su interior apoyada por la fachada trasera acristalada que da a la terraza trasera.
Interior que además tiene gran sensación de espacio por su tamaño y su buena altura interior de 3,5 metros en planta baja y 3 metros en entreplanta.

El local se compone de tres fincas registrales y catastrales independientes, de 564 m2 el bajo comercial y de 111 m2 y 88 m2 las entreplantas, tal como se ve en los planos adjuntados. 

Hasta ahora mismo todo el espacio disponible estaba habilitado como oficinas comerciales de una importante compañía, se encuentra interiormente en perfecto estado, con suelo técnico, techos con iluminación empotrada, instalaciones de climatización, electricidad, informáticas, antincendios, etc completas y dimensionadas, diversos despachos acristalados, ascensor interno para servicio únicamente del local, etc.

En resumen un local de características únicas en excelente estado, listo para ocupar y válido para cualquier uso empresarial o comercial, en el centro de la ciudad, en una calle de gran tránsito que además en 2021 verá licitado el proyecto, ya realizado, por el Ayuntamiento añadiendo zonas peatonales, mobiliario urbano y árboles, que hará que la calle funcione como espina dorsal sobre la que se asentará un modelo de espacio público diverso, ganando metros cuadrados para la estancia y el ocio, impulsando aun más su carácter comercial.

Este singular inmueble se comercializa además por un precio de 1.300.000 €, es decir menos 1.700 €/m2, lo que creemos lo convierte en una gran oportunidad de compra o inversión.

  •         Céntrico
  •         Instalaciones completas
  •         En perfecto estado
  •         Patio Privativo
  •         Gran visibilidad

NO DISPONIBLE


Régimen
Precio
Dirección
Estado
Habitaciones
Tamaño
Año Edificación

Venta
1.300.000€
Sn Andrés 115
Excelente
-- habitaciones
768 m²
2006

Superficie

768

Dormitorios

--

Baños

--

Garaje

--

Contáctenos